Appartement T2 avec parking privé
Ville
MARSEILLE
Surface
36 m²
Pièces
2
Chambres
1
Prix
99 000 €
Honoraires à la charge du
Description
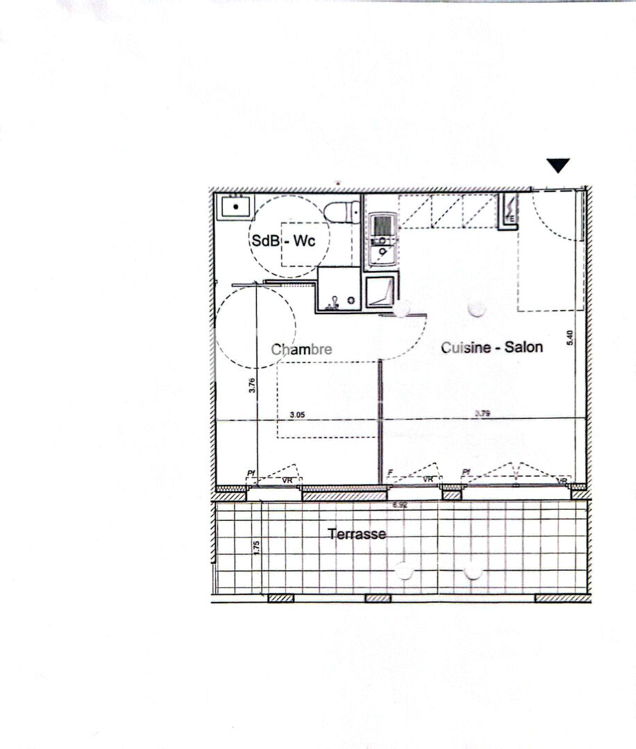
Exclusivité À vendre - Appartement T2 avec terrasse - Résidence récente sécurisée - Marseille 3e, quartier Les Docks Idéal premier achat ou investissement locatif à fort rendement ! Dans une résidence sécurisée de 2015 avec ascenseur, découvrez ce bel appartement 2 pièces de 36 m² situé au 2ème étage avec ascenseur dans le dynamique quartier des Docks, à proximité des transports, commodités et du centre-ville. Il se compose d'un séjour lumineux avec cuisine ouverte, d'une chambre confortable, d'une salle d'eau avec WC, et surtout d'une agréable terrasse de 12 m² exposée ouest et sans vis à vis, idéale pour profiter du soleil en fin de journée. Atouts supplémentaires : Résidence moderne Parking privé en sous-sol Faibles charges Bonne rentabilité locative (secteur recherché) A visiter sans tarder! Contact: Juliette CHAMP 06.24.53.56.44
Caractéristiques
Surface
36 m²
Pièces
2
Chambres
1
Étage
2
Parking
Oui
Diagnostic de performance énergétique (DPE)
Consommation énergétique
C
Classe énergétique (A à G)
Émissions de gaz à effet de serre
C
Classe climat (A à G)
Dépenses énergétiques annuelles estimées (usage standard)
Montant estimé
Entre 220 € et 350 €
Année de référence des prix
01/08/2025
Bien en copropriété
Nombre de lots dans la copropriété : 200 lots
Montant moyen annuel des charges : 1 684,00 €
Procédure en cours
Pas de procédure en cours
Localisation
Localisation approximative pour préserver la confidentialité
KEYMEX Ambitions
KEYMEX Ambitions
Demander des informations
Réf. 649
Biens similaires
233 000 €
Appartement Argenteuil 4 pièce(s) 68 m2
119 000 €
Appartement Clermont Ferrand 1 pièce(s)
153 500 €
Appartement 3 pièces 60 m2 traversant avec loggia - Clermont Ferrand
500 €